ご購入から住めるまで!!まるごとお任せ!!

ご購入から住めるまで!!まるごとお任せ!!

不動産×リフォーム

西建が選ばれる理由は

ご購入から住めるまで、全てが一社完結できるから!

通常、中古住宅を購入してリフォームをする場合、不動産会社とは別にリフォーム会社にご依頼することになります。
購入前のリフォーム相談はなかなか難しく、工期も思うようにならないことも…。お支払いも2社になるので割高に。
西建なら物件探しの段階でリフォーム相談、お打合せが可能です!お支払いも1社なので大変お得になります!

通常、中古住宅を購入してリフォームをする場合、不動産会社とは別にリフォーム会社にご依頼することになりますが、西建なら物件探しの段階でリフォーム相談、お打合せが可能です!
他社さんに依頼した場合
他社さんに依頼した場合
西建に依頼した場合
西建に依頼した場合

中古住宅を購入して
リフォームするメリット

1,000万円の中古住宅を購入して、500万円のリフォームをした場合

新築物件(建売) 中古リノベ物件
価格 3,000万円 1,500万円 予算を抑えて理想の住まいの実現が可能!
ローン (※35年返済 ボーナス0
令和7年10月現在)
82,604円/月 40,959円/月 毎月の支出を抑えて余裕のある暮らしが出来ます!
内装・水まわり 決まっている  自由に選べる お好きなメーカー、カラー、仕様をチョイス!自分好みの気持ちの良い空間を作れます!

住宅ローンとリフォームローンを分けて組むよりも、 セットローン(一社完結)が断然お得です!

1,000万円の中古住宅を購入して、500万円のリフォームをした場合

住宅ローンとリフォームローンを分けて組むよりも、セットローン(一社完結)が断然お得です!

施工事例

施工後

施工後 施工後

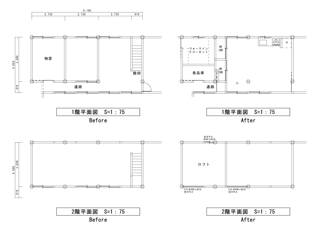
中古物件+フルリノベーション

旦那様が定年を迎えられた時にセカンドハウスとして活用したいとの思いで、築40年以上の物件をフルリノベーションしました。
最も心配されていた耐震についても筋交いを入れるなどの設計をし且つお洒落に仕上げました。2階を無くすという大胆な設計で大きな梁も露出させ広いゆったりとした空間に変身。収納にも困らないようロフトも作りました。

施工後 施工後

ご相談からの流れFLOW

  • FLOW1 ご相談

    FLOW1 ご相談 ご相談

    物件+リフォーム合わせた金額でご相談ください!

    まずはお電話・メールフォームにてお気軽にお問合せいただき、ご予算や物件条件をお聞かせください。ローンのご相談もさせていただきます。

  • FLOW2 物件探し

    FLOW2 物件探し 物件探し

    物件+リフォーム合わせた金額でご相談ください!

    数ある中から条件に合った物件、家探しを行い、現地見学をご一緒にしていただきます。物件状態や周辺環境の確認をいたします。

  • FLOW3 ご契約

    FLOW3 ご契約 ご契約

    物件が決まりましたら、物件の売買契約と、リフォームの工事請負契約をしていただきます。

  • FLOW4 リフォーム

    FLOW4 リフォーム リフォーム

    西建の一番の強みであるリフォームをいたします!
    弊社のリフォーム担当者、建築士、インテリアコーディネーターとお打合せを重ね、理想のお住まいを実現いたします!

  • FLOW5 お引越し

    FLOW5 お引越し お引越し

    リフォームが施工完了しましたら、仕上がりをご確認いただき問題がなければお引渡しとなります。

  • FLOW6 アフターフォロー

    FLOW6 アフターフォロー アフターフォロー

    リフォーム後も、お困りごとや心配ごとがありましたらお気軽にご連絡ください。リフォーム1年点検等もあり、お引渡し後もご安心ください。

詳しくは、お気軽にホームページ・お電話にて
お問合せください!

LIXIL不動産ショップ 株式会社西建
電話番号:0564-73-2012

【営業時間】9:00~18:00

【定休日】日曜(ご予約の方のみ対応可)

岡崎店(電話番号) 豊田店(電話番号)
営業時間、定休日